方案展示
設計說明
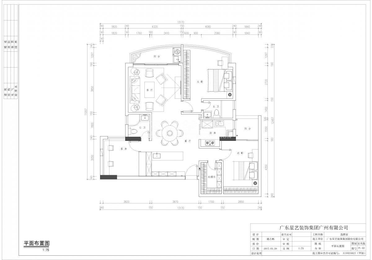
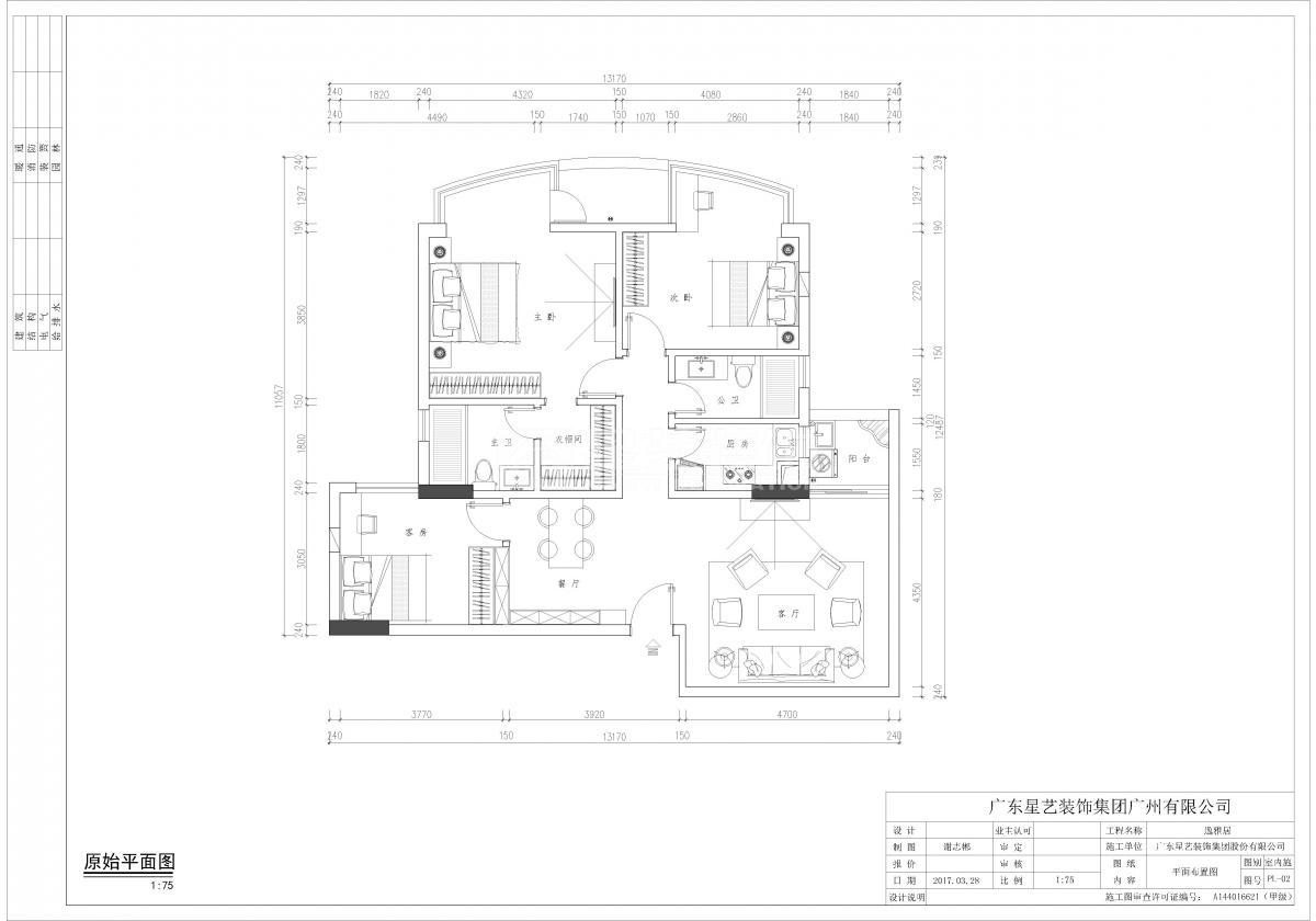
本案是舊房翻新,首先房子有一個比較明顯的缺點,餐廳過小而且不透光,比較暗。這個方案比較大膽的把原主人房改成客廳,這樣可以打開原主臥的墻,光線就可以透到餐廳去。把衣帽間的空間也歸到餐廳,這樣餐廳變的很大很明亮。
[展開]-
星藝設計師的其它設計案例
-
簡歐風格的其它設計案例
關注我們
分享到
微信

立即預約
在線咨詢
在線客服
公安部備案號 44010602004978號